1. Accueil
  2. Achat
  3. Achat Appartement
  4. Achat Appartement Val-de-Marne (94)
  5. Achat Appartement ST MAUR DES FOSSES (94100)

Appartement F2 à vendre 2 pièces - 35,20 m2 ST MAUR DES FOSSES - 94

Ref : 1282

184 800 €

  • Honoraires charge vendeur
Appartement F2 à vendre - 2 pièces - 35.2 m2 - ST MAUR DES FOSSES - 94 - ILE-DE-FRANCE - Century 21 Adamville
Appartement F2 à vendre - 2 pièces - 35.2 m2 - ST MAUR DES FOSSES - 94 - ILE-DE-FRANCE - Century 21 Adamville
Appartement F2 à vendre - 2 pièces - 35.2 m2 - ST MAUR DES FOSSES - 94 - ILE-DE-FRANCE - Century 21 Adamville
Appartement F2 à vendre - 2 pièces - 35.2 m2 - ST MAUR DES FOSSES - 94 - ILE-DE-FRANCE - Century 21 Adamville
Envoyer un message
Message
Envoyer ce bien à un ami

Description

Quartier Adamville, en plein centre-ville, 800m du RER du Parc, commerces au pied de l'immeuble. Situé dans un immeuble bourgeois entièrement réhabilité, ravalé et isolé avec les dernières normes thermiques et acoustiques. Appartement 2P d'une surface habitable de 35.2m² à rénover selon vos goûts. Chauffage et eau chaude en individuel électrique. Travaux à prévoir, idéal pour investisseur ! DPE en D !

Localisation

Laissez-nous vos coordonnées pour obtenir la localisation

Envoyer

Afficher sur la carte :

Demander la localisation

Vue globale

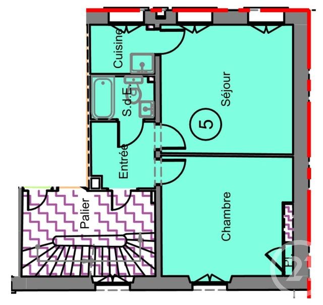
  • Surface totale : 35,2 m2
  • Surface habitable : 35,2 m2
  • Type d'appartement : F2
  • Étage : 1er
  • Nombre de pièces : 2
    • Entrée (2 m2)
    • Séjour (17,7 m2)
    • Chambre (10 m2)
    • Cuisine (3 m2)
    • Salle de bains (2,5 m2)
  • Type de construction : Ancienne
  • Année construction : 1920

Équipements

Les plus

Rue

Général

  • Chauffage : Individuel radiateur electricité
  • Eau chaude : Ballon électrique
  • Toiture : Tuile

À savoir

  • Charges de copropriété : 105 €

À proximité

  • RER : 800 Mètres
  • Commerces : 100 Mètres

Les performances énergétiques

logement extrêmement performantlogement extrêmement peu performantconsommationémissions(énergie primaire)2437kWh/m2.ankg CO2/m2.anPassoire énergétique
* Dont émissions de gaz à effet de serre peu d'émissions de CO2 Émissions de CO2 très importantes kgCO 2 /m 2 .an 7

Date du DPE : 12/03/2025

Montant estimé des dépenses annuelles d'énergie pour un usage standard entre 570,0 € et 810,0 €, indexées à l'année 2023 (abonnements compris).

Envoyer à un ami

Envoyer

Envoyer un message :

Envoyer

Créer votre alerte

Rappel de vos critères de recherche :

Erreur dans les critères envoyés

Limite d'alertes atteinte

Cette alerte existe déjà

Cette alerte est déjà enregistrée pour cette adresse email. Vous continuerez à recevoir les biens correspondant à vos critères.

Une erreur est survenue

Merci de réessayer ultérieurement.

Votre alerte a été créée

Vous recevrez les biens correspondant à vos critères.

logo vente privées

48h

d’avance sur
le marché

Prenez un temps d’avance sur le marché en profitant gratuitement des Ventes Privées CENTURY 21

Si ce n’est déjà fait, allez compléter le profil de votre compte afin de pouvoir recevoir en avant-première des biens exclusifs, réservés à nos clients pendant les 48 premières heures suivant leur commercialisation.

Nos agences proposent régulièrement des biens comme celui que vous cherchez

Ne ratez pas une opportunité, on vous alerte en priorité !

Êtes-vous actuellement propriétaire de votre bien ?
Créer une alerte
Je souhaite être alerté
Voir les biens correspondants